5 locali in vendita

Genova, Via Giovanni A.Molfino - Sestri Ponente
€ 179.000
Prezzo aggiornato
7 locali 7 locali
125 Mq 125 Mq
1 bagno 1 bagno

5 locali in vendita

Genova, Via Giovanni A.Molfino - Sestri Ponente

Descrizione annuncio

VIA GIOVANNI MOLFINO

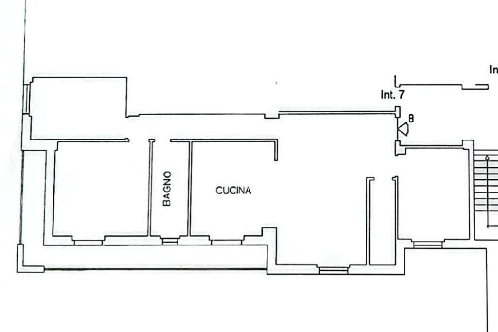
In zona centrale, servita da mezzi e servizi, proponiamo in vendita un appartamento di sette vani di ampia metratura sito al piano terra di un palazzo in buono stato manutentivo.

L'appartamento è composto da ingresso, cucina e sala in open space, tre camere da letto matrimoniali, bagno finestrato con doccia, dispensa e un balcone ad angolo.

L'appartamento è stato recentemente ristrutturato completamente e quindi non necessita di lavori all'interno.

Completa la proprietà una cantina.

Il riscaldamento è autonomo e ciò garantisce basse spese condominiali.

Mostra tutto

Nelle vicinanze

Trasporto pubblico Trasporto pubblico
Genova Sestri Ponente - Aeroporto
Genova Sestri Ponente - Aeroporto
710 m
Genova Borzoli
Genova Borzoli
1,6 Km
S. G. Battista 1 / Giordano
S. G. Battista 1 / Giordano
110 m
S.G.Battista 2 /Giordano
S.G.Battista 2 /Giordano
130 m
Genova Costa di Sestri Ponente
Genova Costa di Sestri Ponente
580 m
Ricariche auto elettriche Ricariche auto elettriche
Eneldrive N.S. Assunta
480 m
Genova Chiaravagna | EnelX
560 m
Stazione Genova Sestri Ponente | EnelX
670 m
Genova Minoletti | EnelX
770 m
Axpo - Albareto
930 m
Scuole Scuole
Liceo Scientifico Lanfranconi (succursale)
220 m
Scuola Primaria "Gianni Rodari"
230 m
Scuola Primaria San Giovanni Battista
250 m
Scuola Secondaria di primo grado V. Centurione
300 m
Scuola Primaria Carducci
380 m
Farmacia Farmacia
Farmacia Comunale Sestri
110 m
Parafarmacia
280 m
Farmacia San Giovanni Battista
310 m
Farmacia Centrale
360 m
Farmacia
380 m
Ospedali Ospedali
Ospedale Padre Antero Micone
400 m
Supermercati Supermercati
dìperdì
180 m
Punto Simply
210 m
Metà
220 m
Lidl
320 m
Ekom
330 m
Negozi Negozi
Negozi
310 m
Dolce e salato
370 m
Sample
380 m
Magic Games Party
410 m
Battaglia
450 m
Bar Bar
Bar Max
300 m
Bar
340 m
Verde Salvia
360 m
Tla crota
370 m
La Piazzetta
390 m
Ristoranti Ristoranti
Pizzeria da Raffa
270 m
Ostaia de Troeuggi
330 m
Caffetteria Pizzeria
340 m
La Lampara
340 m
Il Braciere
360 m
Mostra tutto

Caratteristiche

Rif.:
61059025
Piano:
1 di 6 con ascensore (Piano medio)
Balconi:
1
Camere da letto:
3
Arredamento:
Completo
Condizionamento:
Autonomo
Mostra tutto
Prezzo Prezzo
€ 179.000
Rata mutuo Rata mutuo
€ 827 / mese
Spese annue Spese annue
€ 1.000
Proponi il tuo prezzoProponi il tuo prezzo
Immobile valutato con TecnoValore

Classe Energetica

F
F
F
F
F
F
F
F
F
EP globale rinnovabile:
100.96 kW h/m² anno
Anno di costruzione:
1950
Riscaldamento:
Autonomo
Tipo impianto:
A radiatori
Tipo alimentazione:
Metano

Prezzo ridotto di €1 (5%%)

Ti interessa visionare l'immobile?

Fissa un appuntamento  Fissa un appuntamento

Richiedi informazioni

* Questi campi sono obbligatori

Calcola il tuo mutuo

Semplice e senza impegno
Anticipo

( % )
Mutuo

( % )

pochi semplici passi

inserisci i tuoi dati
Questionario completato
Grazie per aver richiesto un appuntamento senza impegno con un nostro Consulente del Credito e Assicurativo.

Hai inserito correttamente tutti i dati necessari e a breve riceverai una e-mail con un link da convalidare per inviare i tuoi dati.
Affiliato
Immobiliare Sestri Sas
Via Giacomo Soliman, 16-18 R 16154 Genova (GE)
Via Giacomo Soliman, 16-18 R 16154 Genova (GE)
Zona: Genova-Sestri Ponente
Mostra su mappa
Orari: Lunedi - Venerdi dalle ore 08:30 alle 12:30 dalle ore 15:00 alle ore 20:00 Sabato dalle ore 09:00 alle 12:30 dalle ore 15:00 alle ore 19:00 Domenica CHIUSO
Affiliato
Immobiliare Sestri Sas
Via Giacomo Soliman, 16-18 R 16154 Genova (GE)

2025 Tecnocasa Franchising S.p.A. - P. IVA 08365160152 - Via Monte Bianco 60/A 20089 Rozzano (MI). Ogni agenzia ha un proprio titolare ed è autonoma. Privacy policy | Policy utilizzo | Cookie policy